Kristinelundveien 10
Frogner, OsloStatus: Avsluttet etter skisseprosjekt, 2015
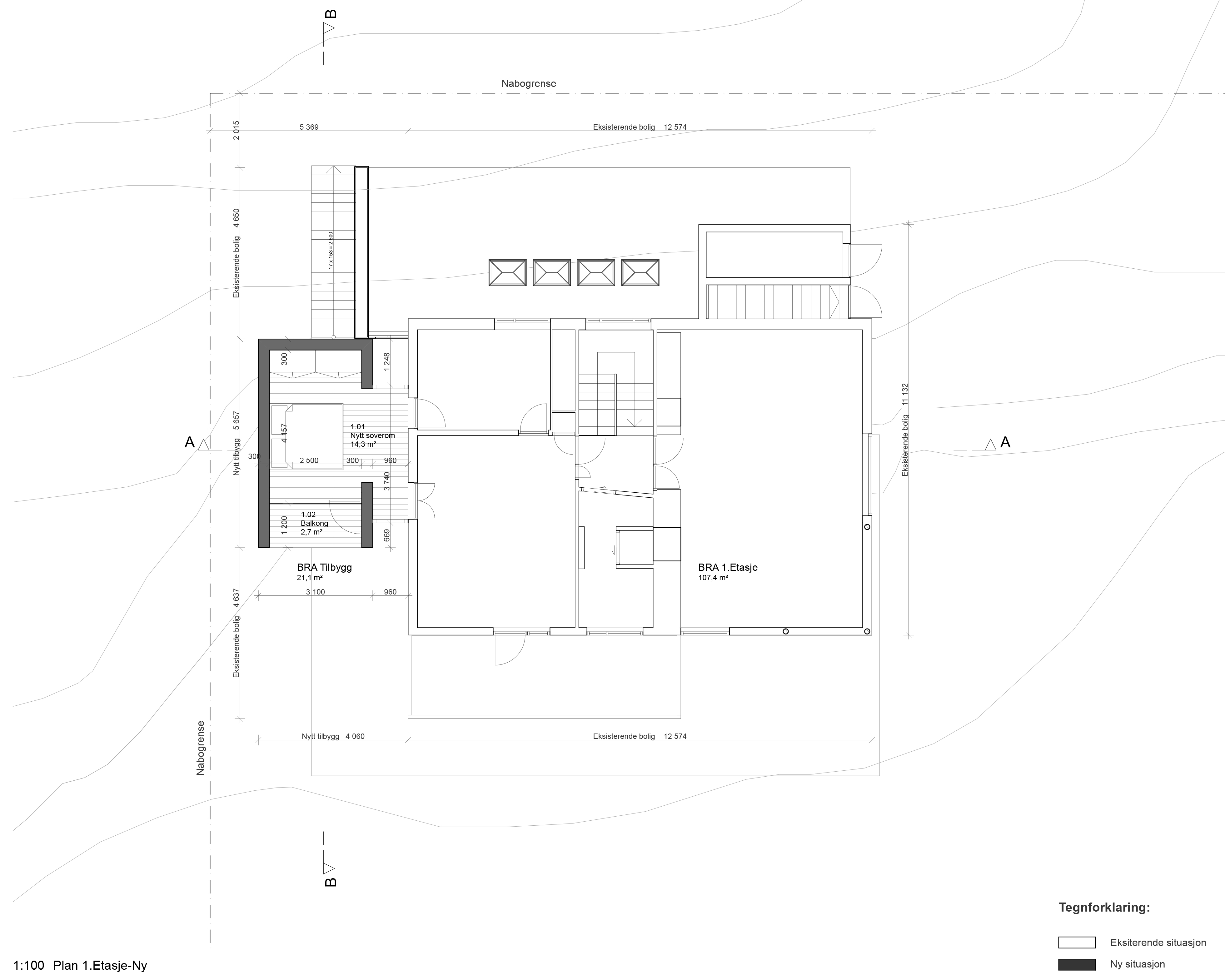
Størrelse: 22m2
Medarbeidere: Henrik Nömm, Erika Damaceno
Tiltakshaver: Karina Nagell-Erichsen
Skisser til en enkel utvidelse til et fantastisk lite hus i ærverdige Kristinelundveien i Oslo. Byggherren ønsker et ekstra rom i 2. etasje, på søyler slik at hagen ikke blokkeres.









