Storgata 17
SandefjordStatus: Skisseprosjekt
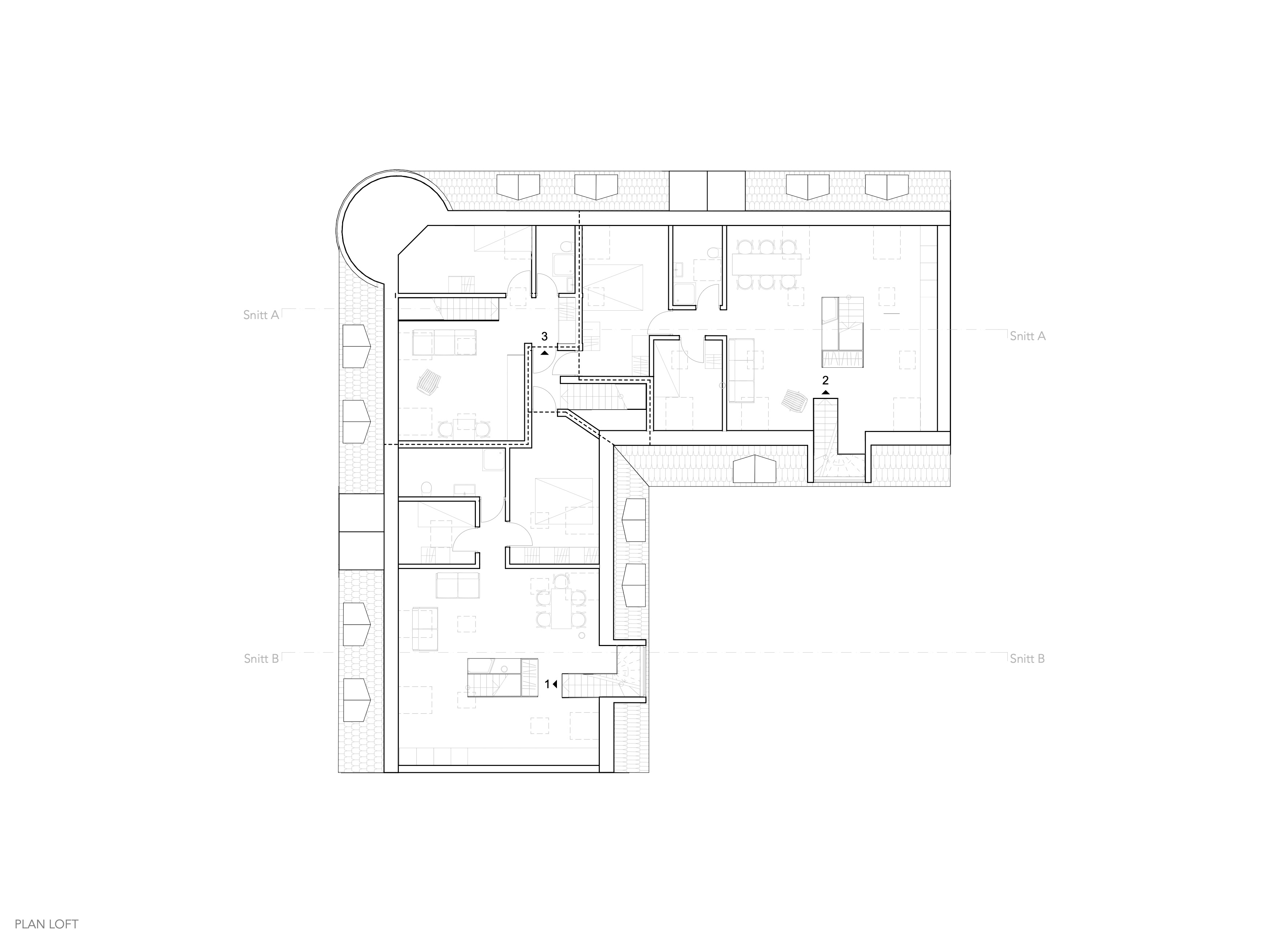
Størrelse: 185 m2
Medarbeidere: Josefine Hauknes, Henrik Nömm
Tiltakshaver: Ulrik Hasle
I denne flotte bygningen i sentrum av Sandefjord er det prosjektert to store leiligheter og en utleiedel. Leilighetene har et stort oppholdsrom med tilgang til takterrasse over ark, samt to soverom og bad.
