HJEM    |   OM OSS    |    PROSJEKTER    |    KONTAKT    |    

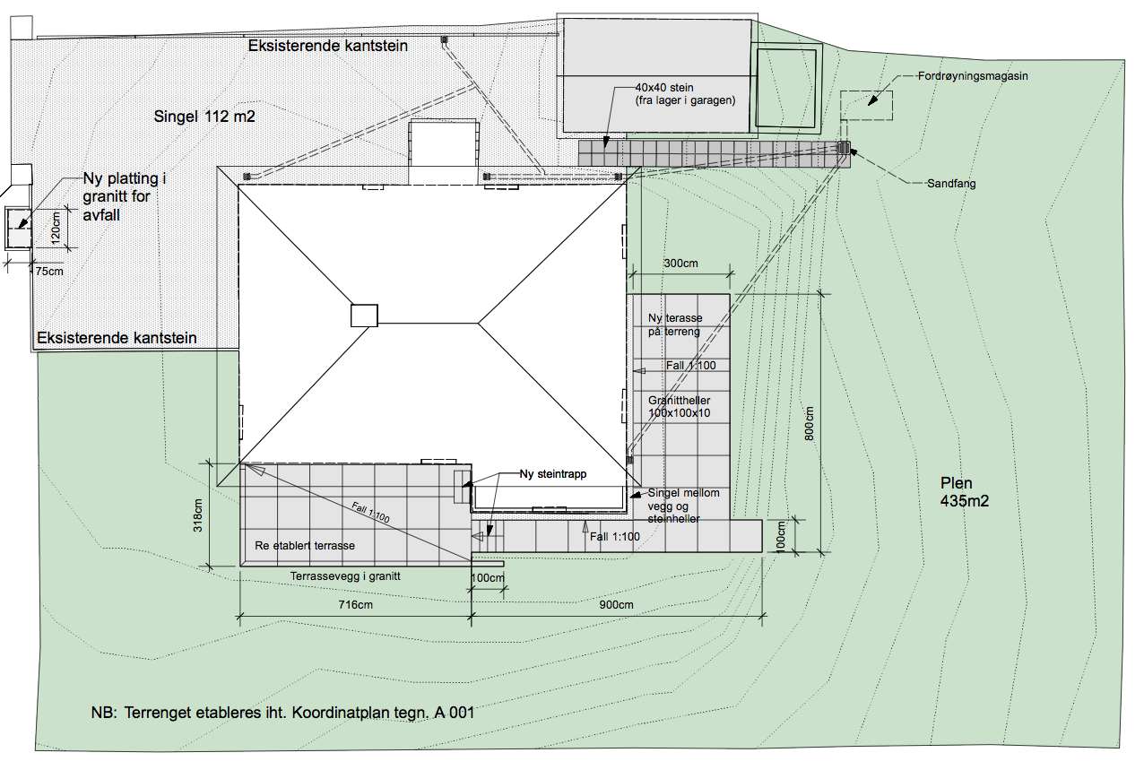
Uteplass i Holmenveien 62

Smestad, Oslo

Uteplassen er laget i sin helhet av granitt. Steinen kommer til byggeplassen i eksakte stykker og settes på plass til frostfri dybde, med ferdige overflater og "livstids garanti".