Posthuset i Oslo
Posthuset, Oslo SentrumKonkurranse
Ferdig: 2015
Medarbeidere: Samarbeidsprosjekt A-tract AS, Pml arkitektur as & Pethon arkitektur.Oppdragsgiver: Entra Eiendom AS
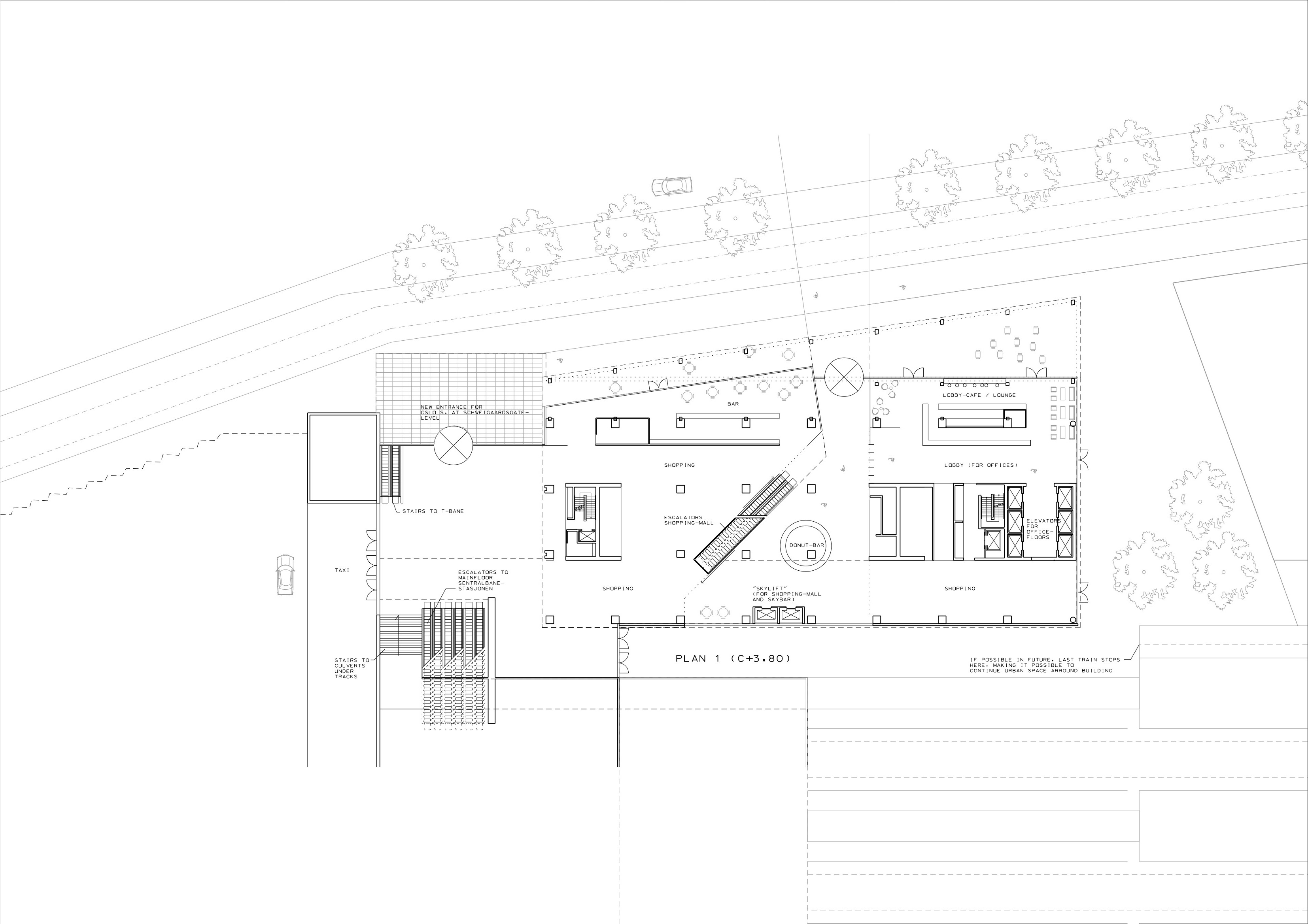
Skisseprosjekt til ombygging av Posthuset i Oslo (tidligere Postgirobygget).
Det foreslås en ny form som tilpasser seg gatens geometri og en ny fasade rundt hele bygget. Bygningen åpner seg på gateplan og skaper god flyt for fotgjengere, knytter sammen gaten med Oslo S og handelen i nabolaget.
Både fasaden og planløsningen tillater en fleksibel programmering av bygget. Sammen med en vesentlig økning av arealet og reduksjon av vindusarealet vil cradle-to-cradle løsninger og økologiske materialer gi bygget en bærekraftig profil.
 
 
 
 
 
 
 
 
 
 
 
 
 
 
 
 
 
 
